


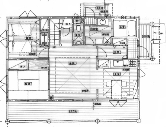
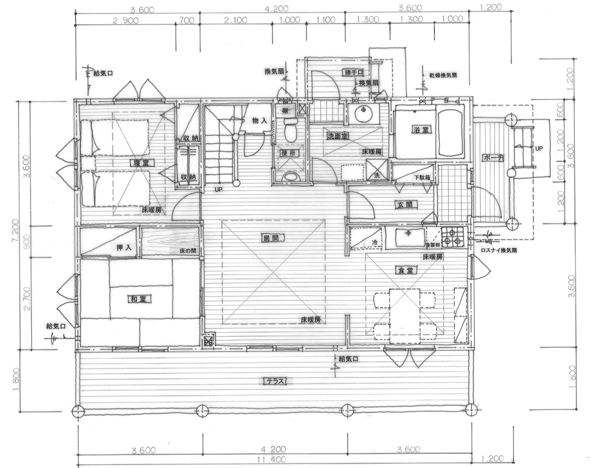
| ・ | 構 法 | : | 枠組壁構法 (ツーバイフォー構法) +ログ ログ部分=棟木・母屋 玄関柱及び小屋組・ベランダ柱・梁・手すり |
-
| ・ | 外 壁 | : | 一階・二階 =シダーサイディング(横貼り) |
| ・ | 屋 根 | : | ガルバリウム鋼板 |
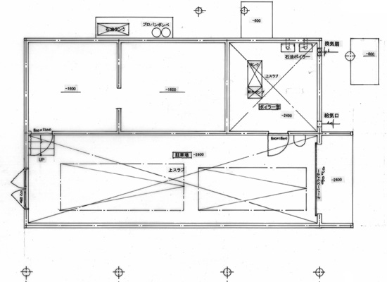
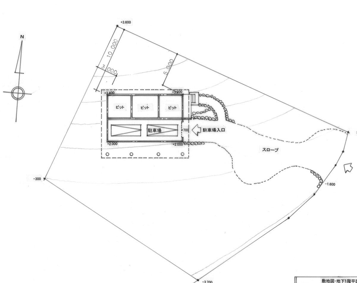
| ・ | 地下室 : ガレージ ボイラー室 倉庫 | ||
| ・ | 玄関ポーチ テラス バルコニー | ||
| 1坪=2帖=3.306u で計算 | ||||||
| ・ | 玄関ポーチ | : | 1.09 | 帖 | ||
| ・ | 玄 関 | : | 12.5 | 帖 | 床=タイル+フローリング 地階ガレージに車を置き階段を上って玄関へ |
|
| ・ | リビング | : | 12.5 | 帖 | ||
| ・ | 台所・食堂 | : | 7.9 | 帖 | 対面式キッチン・サービスカウンター | |
| ・ | 和 室 | : | 7.95 | 帖 | プラス押入れ+床の間 | |
| ・ | 寝 室 | : | 7.9 | 帖 | 収納2か所 | |
| ・ | 洗面脱衣 | : | 5 | 帖 | 洗濯機 洗面化粧台 勝手口 | |
| ・ | 浴 室 | : | 2.5 | 帖 | ||
| ・ | トイレ | : | 1.2 | 帖 | 棚・手洗い | |
| ・ | 階 段 | : | かね折階段 階段下収納 | |||
| ・ | テラス | : | 6.21 | 帖 | 4本の柱が屋根を支え二階のバルコニーとともに雨にぬれずに済む |

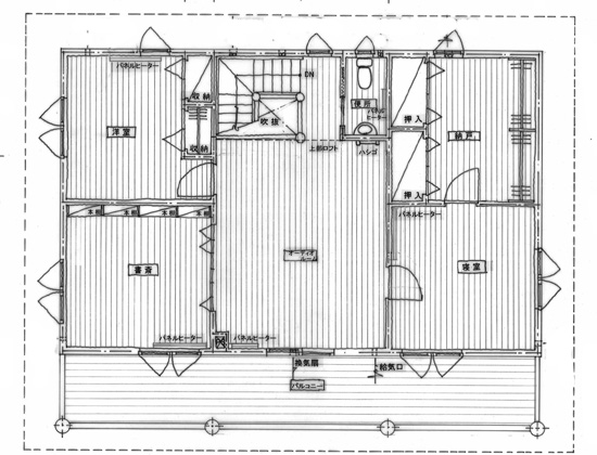
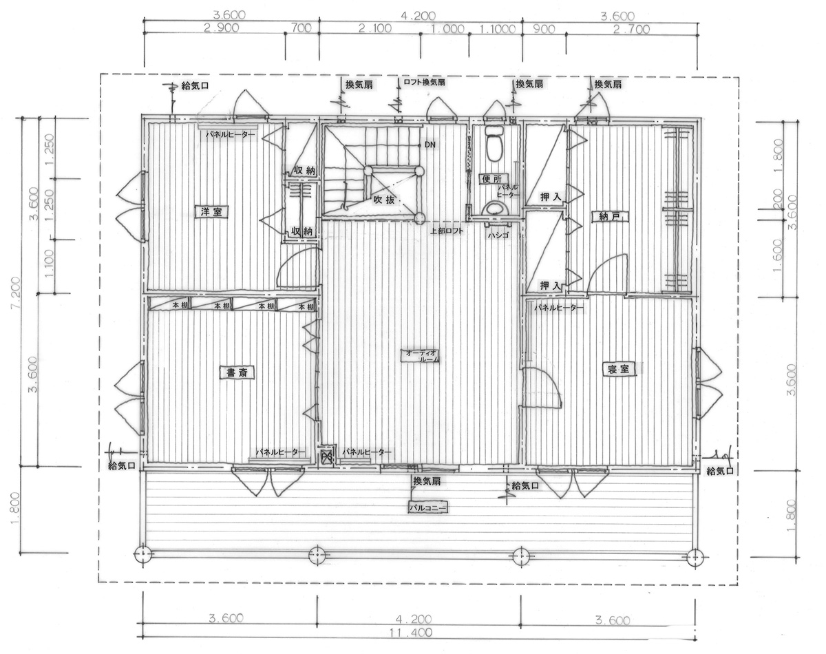
| 1坪=2帖=3.306u で計算 | ||||||
| ・ | バルコニー | : | 12.5 | 帖 | ロフトの掃出しを通ってバルコニーに出られます。 バルコニーを支える丸太の柱は一階のベランダから続いている(パースとは違います) |
|
| ・ | ロフト | : | 14.3 | 帖 | 登り天井でおちついた空間。梯子を上って屋根裏部屋へ | |
| ・ | 寝 室 | : | 7.9 | 帖 | 9帖の納戸と隣接している | |
| ・ | 洋 室 | : | 7.9 | 帖 | 収納2か所 | |
| ・ | 書 斎 | : | 7.9 | 帖 | ||
| ・ | トイレ | : | 1.3 | 帖 |

| 1坪=2帖=3.306u で計算 | ||||||
| ・ | 車 庫 | : | 24.87 | 帖 | 車2台(縦列駐車) ガレージ扉 | |
| ・ | ボイラー室 | : | 7.85 | 帖 | ||
| ・ | 倉 庫1 | : | 7.85 | 帖 | ||
| ・ | 倉 庫2 | : | 9.16 | 帖 |
●
| 一階床面積 | 82.08u | 24.83坪 | |
| 二階床面積 | 81.08u | 24.52坪 | |
| ロフト | 8.40u | 2.54坪 | |
| 地階床面積 | 54.00u | 16.33坪 | |
| 延床面積 | 225.56u | 68.22坪 | |
| 吹き抜 | 1.00u | 0.30坪 | |
| 延床+吹抜 | 226.56u | 68.52坪 | |
| 玄関ポーチ | 3.60u | 1.09坪 | |
| テラス | 20.52u | 6.21坪 | |
| バルコニー | 20.52u | 6.21坪 | |
![]() |
![]() |
![]() |
|
|---|---|---|---|
| ハンドカットのログハウス 家と間取り |
マシンカットのログハウス。 家と間取り |
ポスト&ビームのログハウス 家と間取り | 2×4工法とログハウス 家と間取り |
![]() |
![]() |
![]() |
![]() |
| 2×4工法。 家と間取り |
大規模ログハウス 家と間取り |
一般住宅 家と間取り |
RC(鉄筋コンクリート) |
