


関連するサイト
| ・ | 構 法 | : | 枠組壁構法 (ツーバイフォー構法) |
| ・ | 外 壁 | : | 一階部分 =シダーサイディング(横貼り 二階・妻壁=シダーサイディング(縦張り) |
| ・ | 屋 根 | : | ガルバリウム鋼板 |
| 地下車庫 |
| 1坪=2帖=3.306u で計算 | ||||||
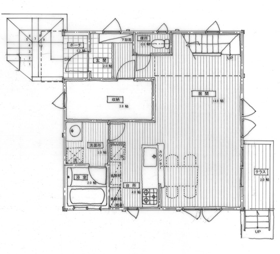
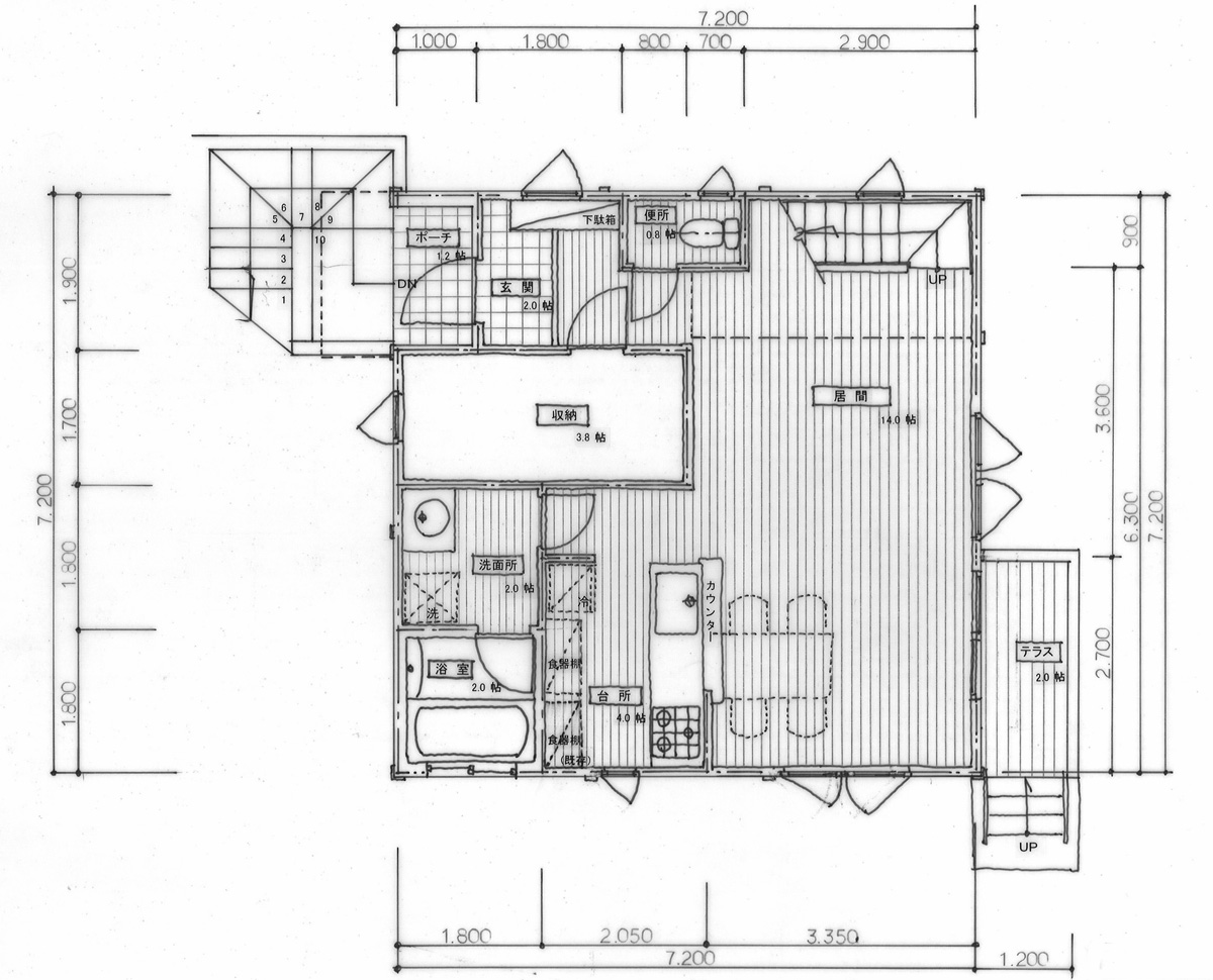
| ・ | テラス | : | 2.0 | 帖 | ||
| ・ | 玄関ポーチ | : | 1.2 | 帖 | ||
| ・ | 玄 関 | : | 2.0 | 帖 | 床=タイル+フローリング 下駄箱 | |
| ・ | 居間・食堂 | : | 14.0 | 帖 | ||
| ・ | 台 所 | : | 4.0 | 帖 | サービスカウンター | |
| ・ | 洗面脱衣 | : | 2.0 | 帖 | 洗濯機 洗面化粧台 | |
| ・ | 浴 室 | : | 2.0 | 帖 | ||
| ・ | トイレ | : | 0.8 | 帖 | ||
| ・ | 階 段 | : | 直階段 (オープン) | |||
| ・ | 収 納 | : | 3.8 | 帖 |

| 1坪=2帖=3.306u で計算 | ||||||
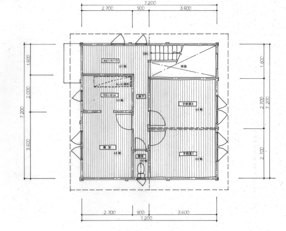
| ・ | 廊 下 | : | 2.08 | 帖 | ||
| ・ | ホビールーム | : | 2.7 | 帖 | ||
| ・ | 子供室1 | : | 6.0 | 帖 | 収納 クローゼット | |
| ・ | 子供室2 | : | 6.0 | 帖 | ||
| ・ | 寝 室 | : | 6.0 | 帖 | プラス クローゼット3.3帖 | |
| ・ | 便 所 | : | 0.8 | 帖 | プラス 押入れ |
| 1坪=2帖=3.306u で計算 | ||||||
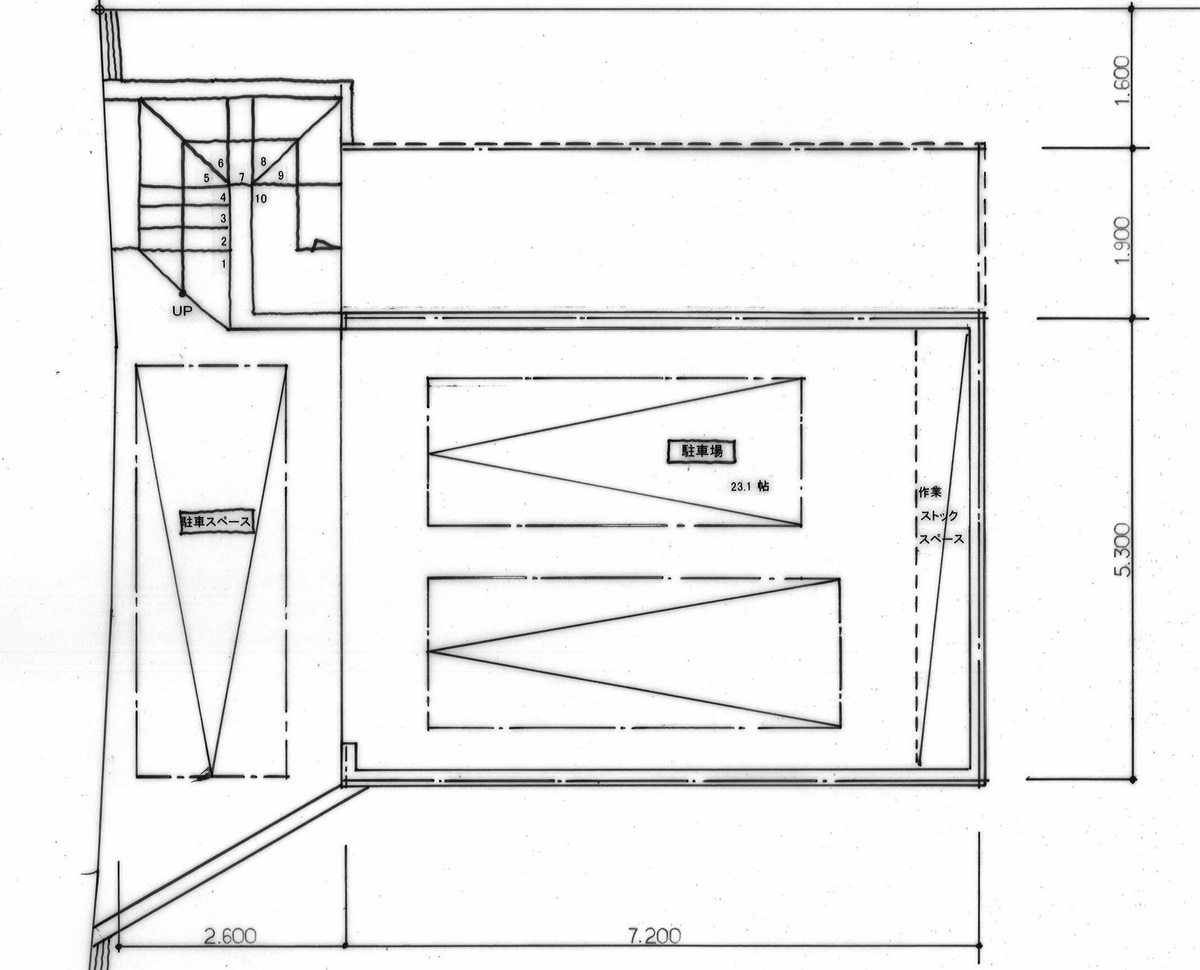
| ・ | ガレージ | : | 23.1 | 帖 | 幅3m 車2台収納 可能 後ろに作業スペース | |
| ・ | 階段 | : | 登って玄関ポーチへ |

| 一階床面積 | 49.94u | 17.83坪 | 1坪=3.306u |
| 二階床面積 | 48.60u | 14.70坪 | |
| 地階床面積 | 38.16u | 11.54坪 | |
| 延床面積 | 136.70u | 41.35坪 | 建築コストは延べ床面積に吹き抜けを足した数字をベースにします |
| 吹き抜 | 3.24u | 0.98坪 | |
| 延床面積+吹抜 | 139.94 | 42.33坪 | |
| テラス | 3.24u | 0.98坪 | |
| ポーチ | 1.90u | 0.57坪 | |
| 外階段 | 6.52u | 1.97坪 |
![]() |
![]() |
![]() |
|
|---|---|---|---|
| ハンドカットのログハウス 家と間取り |
マシンカットのログハウス。 家と間取り |
ポスト&ビームのログハウス 家と間取り | 2×4工法とログハウス 家と間取り |
![]() |
![]() |
![]() |
![]() |
| 2×4工法。 家と間取り |
大規模ログハウス 家と間取り |
一般住宅 家と間取り |
RC(鉄筋コンクリート) |