


外観はレンガとシックイ作りの一見邸宅。内装に内部はレッドシダーをふんだんに使った別荘風に。
レッド・シダーの内装の家
那須にレッド・シダーを使用し別荘を建てさせて頂いた練馬区のKさん。すっかり気に入り自宅を建て直すことに。
別荘でウエスタン・レッド・シダーのよさを認識したKさん。
外観はレンガとシックイ調でまとめたが、中に入るとガラリと変わり、内装にレッド・シダーふんだんに使い別荘風に仕上げた。
○内装をレッド・シダーでまとめた
オーナープロフィル
年齢:60台前半(建築当時)
職業: 会社経営
写真:外観はレンガ作りの堂々たる雰囲気の邸宅
この外観からは内装がレッド・シダーを使用した、別荘風であることは想像が出来ない。
本当は外壁もレッド・シダーを使いたかったのだが、防火法の関係で出来なかった。そのかわり内装にはレッド・シダーを多用した。
![]()
■レッド・シダーの内装の家
1外装は一階煉瓦二階部分塗り壁
2
車3台の入るガレージ
3ガレージ内部
4花をおいた飾り棚
5登り天井にレッド・シダーをはった落ち着いた書斎
6腰壁と天井にレッド・シダー。床は向くのフローリング
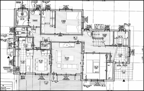
■レッド・シダーの内装の家 一階平面図
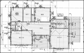
レッド・シダーの内装の家 二階平面図
![]() |
![]() |
![]() |
|
|---|---|---|---|
| ハンドカットのログハウス |
マシンカットのログハウス。 | ポスト&ビームのログハウス | 2×4工法とログハウス |
![]() |
![]() |
![]() |
![]() |
| 2×4工法。 | 大規模ログハウス、 | 一般住宅 |
